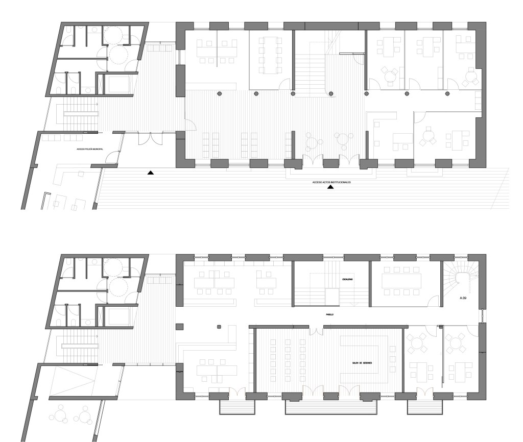
CONCURSO REFORMA INTEGRAL CASA CONSISTORIAL
LOCALIZACIÓN: Ortuella, País Vasco
PROMOTOR: Ayuntamiento de Ortuella
AÑO: 2018
2º PREMIO
CONCURSO REFORMA INTEGRAL CASA CONSISTORIAL
LOCALIZACIÓN: Ortuella, País Vasco
PROMOTOR: Ayuntamiento de Ortuella
AÑO: 2018
2º PREMIO



